Swixim Paris
Agence Immobilière à Paris 11ème
01 48 06 15 75 111 Boulevard Lenoir paris 75011 France
 

75017 Paris1

Appartement 3 pièces - 47.64m²

459 000 €

5 / 5
47.64 m²
3 pièces
2 chambres
1
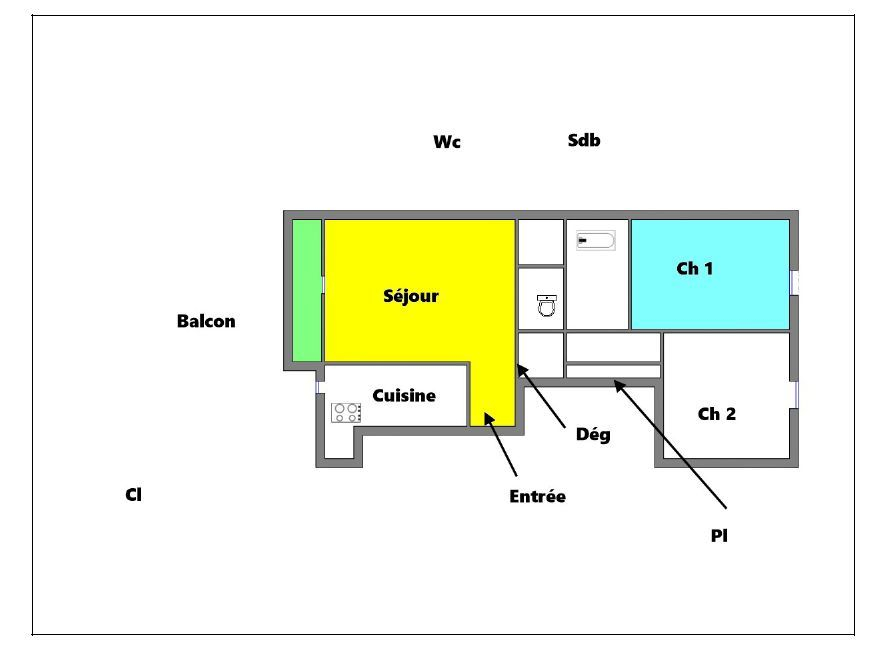
Swixim vous présente un appartement 3 pièces de 47,64 m² au 5ᵉ étage avec ascenseur.

Situé dans un quartier dynamique et recherché, à proximité immédiate de toutes les commodités, cet appartement bénéficie d'un emplacement idéal. Les transports en commun sont au pied de l'immeuble : métro ligne 13, 14 et tramway T3b.

L'appartement se compose d'une entrée fonctionnelle, d'une cuisine aménagée et équipée, séjour lumineux ouvrant sur un balcon avec une vue dégagée, de deux chambres, d'une salle de bain et des toilettes indépendantes.

Une cave vient compléter ce bien.

Il est également possible d'acquérir une place de parking en supplément.

Aucune procédure en cours dans la copropriété.

Charges : 300 euros/ mois



4 + 5 =
- Honoraires à la charge du vendeur
- Taxe foncière : 1261.00 €- Copropriété : 420 lots
- Charges courantes provisionnelles annuelles : 3 600,00 €
Aucune procédure en cours menée sur le fondement des articles 29-1A et 29-1de la loi 65-557 du 10 juillet 1965 et de l'Article L.615-6 du CCH
-
- Les informations sur les risques auxquels ce bien est exposé sont disponibles sur le site Géorisques : www.georisques.gouv.fr - Copropriété : 420 lots
Diagnostic de performance énergétique : 297
Gaz à effet de serre : 64

Date du diagnostic : 23/05/2024
- Dépense estimée mini DPE : 750.00 €
- Dépense estimée maxi : 1050.00 €
- Année réference : 2024


Diagnostic de performance énergétique